Current Information
- Ski amadé ski packages
- Ski amadé Internetpräsenz
Health and security measures
- Rooms are cleaned most thoroughly after every guest departure, in particular often touched items
- Disinfection of often touched items and surfaces
- Room cleaning includes ventilation, change of cleaning tissues and disinfection of gloves after every room
- First aid kit available
Facilities
-
Facilities / Services
- Bread/rolls service
- EV charging station
- WiFi
- apartments with hotel service
- barbecue area (with benches)
- barbecue lodge
- boot dryer
- breakfast service
- car parking lot
- cleaning
- covered parking for motorcycles
- deck chairs
- drying room
- electric car charging station
- family friendly
- flat-rate offer
- free use of internet
- garden barbecue
- garden furniture
- garden house
- group accommodation
- herb garden
- laundry facilities available
- luggage storage
- non-smoking house
- parking space for bicycles
- room service
- ski storeroom
- sunshades
- terrace
- tiled stove
-
Children
- child reduction
- child-friendly
- children's bed
- crib/baby bed
-
Location
- close to forest
- meadowlands
- outskirts of town
- quiet location
- right at the cross-country ski trail
- right at the ski-bus/ hiking-bus/ bus stop
- right on the bike path
-
Meals
- breakfast buffet
- breakfast on request
- extended breakfast
- no board
-
Wellness
- aromatic steam sauna
- infrared cabin
- invigorated water
- relaxation room
- sauna
- steambath
- wellness area
-
Incidental costs
- use of washing machine/dryer: 10
-
Sports / Leisure time
- bathing pond
- natural pond
- reduced admission to indoor/outdoor pool
- sunbathing lawn
-
Foreign languages
- English
- German
-
Cleaning
- Guests have the possibility to dispense the daily cleaning
-
Water economy
- Guests can use towels several times
-
Waste separation & waste avoidance
- Waste separation / recycling containers
-
Mobility
- Possibility to charge electric vehicles
-
Groups
- groups possible with max. pers.: 20
-
Conditions
Included in the price:
in winter: daily use of the wellness area
in summer: use of the garden with natural swimming pond
Ski & bicycle storage
Parking space
Miscellaneous:
Pets allowed upon request for a fee
E-charging station available
Contact & Directions
Landhaus Huber
5541 Altenmarkt-Zauchensee AT
Arrival
Check-In: from 2:00 PM to 6:00 PM Arrivals outside of these hours are possible by prior arrangement.
Check-Out: by 10:00 AM
Trust-You rating
Photos
Rooms/Apartments & Prices
Rooms
-
Room details
spacious double room | cozy couch (bed for 3rd person) | equipped with wooden furniture | view towards Dachstein Mountains
Room/apartment features
WiFi, pets permitted on request, desk, modern furnishing, non-smoking room/apt., bed linen (non-allergenic), socket close to bed, radio, essentials (towels, bed linen, soap, toilet tissue), open foot-end of bed, hairdryer, radio alarm, internet connection available, room/apt. (non-allergic), balcony furniture, towels available, TV, toiletries, smoke detector, safe, bed linen available, sauna, bathrobe on request, balcony, cable TV
Bathroom facilities
no. of bathrooms: 1, separate toilet, shower
Bed distribution
double bed (1 bed/2 mattresses), number sofa bed/s: 1, sofa
-
Room details
double room | comfortable furniture | couch or sitting area | balcony
Room/apartment features
smoke detector, low-noise room/apart., bed linen (non-allergenic), socket close to bed, essentials (towels, bed linen, soap, toilet tissue), room/apt. (non-allergic), balcony furniture, TV, cable TV, balcony, open foot-end of bed, radio, quiet room/apartment, family room/apt., bathrobe on request, bed linen available, non-smoking room/apt., internet connection available, WiFi, desk, toiletries, radio alarm, sauna, safe, towels available, hairdryer
Bathroom facilities
shower, toilet, no. of bathrooms: 1, running hot/cold water
Bed distribution
cot, double bed (1 bed/2 mattresses)
-
Room details
cozy room | spacious bathroom | amenities with lots of wood
Room/apartment features
WiFi, essentials (towels, bed linen, soap, toilet tissue), toiletries, bed linen (non-allergenic), room/apt. (non-allergic), socket close to bed, radio, internet connection available, smoke detector, radio alarm, balcony (in some rooms), non-smoking room/apt., safe, modern furnishing, bathrobe on request, open foot-end of bed, bed linen available, quiet room/apartment, towels available, pets permitted on request, hairdryer, sauna, use of washmachine
Bathroom facilities
no. of bathrooms: 1, shower, toilet
Bed distribution
single bed
-
Room details
comfortable apartment | facilities for 2 persons (for 3rd and 4th person sleeping on the couch possible) | balcony with view to the Dachstein
Room/apartment features
island kitchen, electric stove, bed linen available, WiFi, furniture suite, balcony, quiet room/apartment, pets permitted on request, dishes available, towels available, coffeemaker, bathrobe on request, cable TV, living room, essentials (towels, bed linen, soap, toilet tissue), use of washmachine, safe, room/apt. (non-allergic), open foot-end of bed, balcony furniture, cooking possibilities, radio alarm, hairdryer, bed linen (non-allergenic), toiletries, socket close to bed, non-smoking room/apt., separate bedroom/s: 1, kettle, family room/apt., smoke detector, radio, combined bedroom/living room, refrigerator, rustic furniture, freezer compartment, internet connection available, low-noise room/apart., dishwasher, kitchen and table linen, weekly cleaning, oven, TV, open plan kitchen/living room, kitchen, refrigerators available, vent hood
Bed distribution
sofa, double bed (1 bed/2 mattresses), double sofa bed
Bathroom facilities
shower, toilet, running hot/cold water, no. of bathrooms: 1
-
Room details
one-room apartment | comfortable facilities for 2 persons (for 3rd person sleeping on the couch possible) | balcony with view to the Dachstein
Room/apartment features
dishes available, socket close to bed, kettle, towels available, bed linen (non-allergenic), dishwasher, hairdryer, oven, essentials (towels, bed linen, soap, toilet tissue), WiFi, combined bedroom/living room, toiletries, TV, balcony furniture, freezer compartment, room/apt. (non-allergic), kitchen, refrigerator, furniture suite, radio, use of washmachine, electric stove, internet connection available, open plan kitchen/living room, smoke detector, kitchen and table linen, open foot-end of bed, modern furnishing, safe, non-smoking room/apt., coffeemaker, bathrobe on request, vent hood, refrigerators available, weekly cleaning, bed linen available, cable TV, island kitchen, pets permitted on request, cooking possibilities, balcony
Bed distribution
double bed (1 bed/2 mattresses), number sofa bed/s: 1
Bathroom facilities
running hot/cold water, no. of bathrooms: 1, shower, toilet
-
Room details
comfortable apartment | facilities for 2 persons (for 3rd and 4th person sleeping on the couch possible) | balcony with view to the Dachstein
Room/apartment features
refrigerator, quiet room/apartment, open plan kitchen/living room, oven, TV, dishes available, kitchen, socket close to bed, smoke detector, balcony furniture, combined bedroom/living room, vent hood, WiFi, radio, kitchen and table linen, family room/apt., separate bedroom/living room, living room, hairdryer, island kitchen, bathrobe on request, kettle, essentials (towels, bed linen, soap, toilet tissue), coffeemaker, cable TV, anteroom, satellite TV, freezer compartment, toiletries, radio alarm, non-smoking room/apt., pets permitted on request, modern furnishing, refrigerators available, cooking possibilities, weekly cleaning, safe, open foot-end of bed, furniture suite, internet connection available, separate bedroom/s: 0, dishwasher, electric stove, balcony, bed linen available, towels available
Bathroom facilities
no. of bathrooms: 1, running hot/cold water, shower, toilet
Bed distribution
number double bed/s: 1, double sofa bed
-
Room details
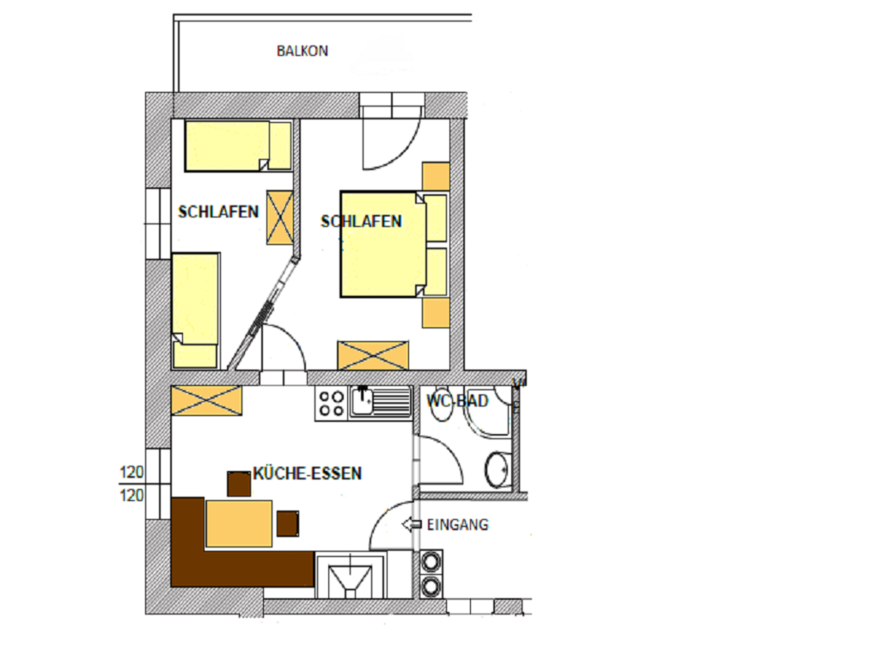
comfortable apartement | two large bed rooms | living room with kitchen | bath room and seperate toilet | balcony with view to the garden
Room/apartment features
TV, hairdryer, toiletries, family room/apt., kitchen and table linen, smoke detector, essentials (towels, bed linen, soap, toilet tissue), kettle, island kitchen, vent hood, non-smoking room/apt., cable TV, refrigerators available, refrigerator, kitchenette, quiet room/apartment, internet connection available, dishwasher, separate living room, balcony, bed linen available, open foot-end of bed, low-noise room/apart., cooking possibilities, safe, living room, separate bedroom/s: 2, balcony furniture, anteroom, bathrobe on request, sauna, freezer compartment, open plan kitchen/living room, electric stove, radio alarm, WiFi, dishes available, towels available, coffeemaker, furniture suite, room/apt. (non-allergic), kitchen, oven, weekly cleaning, separate bedroom/living room
Bathroom facilities
separate toilet, no. of bathrooms: 1, shower
Bed distribution
number couch/es: 1, number sofa bed/s: 1, sofa, number double bed/s: 2
-
Room details
spacious apartement | two cozy bed rooms | bed-sit with complete kitchen | balcony with view to the garden
Room/apartment features
use of washmachine, essentials (towels, bed linen, soap, toilet tissue), quiet room/apartment, balcony, vent hood, kettle, safe, socket close to bed, non-smoking room/apt., pets permitted on request, coffeemaker, island kitchen, towels available, dishwasher, weekly cleaning, internet connection available, room/apt. (non-allergic), WiFi, balcony furniture, kitchen, freezer compartment, bed linen (non-allergenic), electric stove, TV, refrigerators available, family room/apt., dishes available, smoke detector, refrigerator, sauna, oven, cable TV, separate bedroom/living room, kitchen and table linen, dining room, hairdryer, rustic furniture, open plan kitchen/living room, bathrobe on request, bed linen available, radio, furniture suite, toiletries, open foot-end of bed, separate bedroom/s: 0, radio alarm, balcony (in some rooms), cooking possibilities
Bathroom facilities
separate toilet, no. of bathrooms: 1, shower
Bed distribution
number double bed/s: 2
-
Room details
spacious apartment | living room with kitchen | bedroom with double bed + bedroom with two single beds | balcony with beautiful view to the garden
Room/apartment features
towels available, TV, radio, vent hood, weekly cleaning, internet connection available, cable TV, kitchen and table linen, essentials (towels, bed linen, soap, toilet tissue), island kitchen, electric stove, sauna, refrigerator, cooking possibilities, balcony, WiFi, family room/apt., tile stove, balcony furniture, kettle, open plan kitchen/living room, pets permitted on request, hairdryer, smoke detector, toiletries, oven, non-smoking room/apt., coffeemaker, socket close to bed, no pets allowed, bed linen available, kitchen, refrigerators available, bathrobe on request, bed linen (non-allergenic), safe, open foot-end of bed, dishwasher, use of washmachine, radio alarm, freezer compartment, dishes available, separate bedroom/living room
Bathroom facilities
no. of bathrooms: 1, running hot/cold water, shower, toilet
Bed distribution
number single bed/s: 2, double bed (1 bed/2 mattresses)
-
Personal service
-
Secure with SSL
-
Independent ratings
-
100% Price transparency