Landhaus Birgit
- Ski amadé Internetpräsenz
- Schladming-Dachstein Card Partner
Ausstattung
-
Zahlungsarten
- Barzahlung
- EC-Cash / Maestro
- Kreditkarten möglich
- Vorauszahlung
- Überweisung
-
Einrichtungen Betrieb
- Brötchenservice
- Einstellplatz für Fahrräder
- Familienfreundlich
- Grillplatz (mit Sitzbänken)
- Haustiere nicht erlaubt
- Kurzaufenthalt willkommen
- PKW-Parkplatz
- Satelliten-TV
- Schuhtrockner
- Skiabstellraum
- Waschmaschinenbenutzung mögl.
- WiFi
- Zentrale Reception
- Zimmer/App. mit Aussicht
-
Eignung
- Einzelreisende
- Familien
- Geschäftsreisende
- Gruppen
- Jugendliche
- Kinder
- Nichtraucher
- Senioren
- Singles
-
Lage
- Direkt am Radweg
- Ruhige Lage
- Waldnähe
- Wiesenlage
-
Kinder
- Gitterbett / Babybett
- Kinderbett
- Kinderfreundlich
- Kinderhochstuhl
- Kinderspielplatz
-
Wellness
- Infrarotkabine
-
Gruppen
- Busparkplatz
- Gruppen möglich bis Pers.: 40
-
Fremdsprachen
- Englisch
-
Tagung / Kongress
- WiFi
-
Links
-
Konditionen
Wir sind ein 3 Sterne Appartementhaus.
Wir bieten auch Brötchenservice an.
Falls die Gäste Fragen haben oder etwas brauchen bin ich auch jederzeit erreichbar bzw. auch vor Ort.
Kontakt & Anreise
Landhaus Birgit
8967 Haus im Ennstal AT
Anreise
Unsere private Wohnung ist im selben Haus und macht auch somit die Anreise bzw. den Check - in einfacher da ich vor Ort bin.
Dann wird auch der Schlüssel persönlich übergeben und eine Einweisung folgt auch danach.
Trust-You-Bewertung
Fotos
Appartements & Preise
Zimmer-Übersicht
-
ab € 105,00 €
Größe 48 m² Belegung 2 - 5 Erwachsene , 0 - 3 Kinder Zimmer 2 Schlafzimmer 1 Zimmerdetails
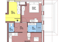
Appartement Stoder bietet mit einer Größe von 48m² Platz für 2-5 Personen und bietet Ihnen mit seiner Ausstattung jeden erdenklichen Komfort.
Ausstattung:
» App. für 2-5 Personen mit ca. 48m² inkl. Balkon
» App. sind mit Zirbenmöbel und Eichenparkett eingerichtet
» Wohnküche mit komplett eingerichteter Küche und Essbereich
» Wohnecke mit SAT TV und ausziehbarer Comfort Couch
» 1 Doppelschlafzimmer
» 1 ausziebaren Comfortsessel
» Badezimmer mit Dusche
» WC extra
» Balkon
» Gratis W-LANSanitäre Ausstattung
Separates WC, Doppelwaschbecken, Fließendes Kalt- und Warmwasser, Toiletten Anzahl: 1, Dusche, Dusche, WC, Badezimmer Anzahl: 1, Waschtisch
Ausstattung Zimmer/Appartement
Handtücher vorhanden, Familienzimmer / app., Bettwäsche vorhanden, Ohne Teppich, Balkonmöbel, Toaster, Garten, Backofen, Wiese, Gefrierfach, Kühlschrank, Dunstabzug, Gefriermöglichkeit, WiFi, Küche, Kaffee-Maschine, Kochmöglichkeiten, Haarföhn, Küchengeräte, Haustiere nicht erlaubt, Safe, Balkon, Fernseher, Mikrowelle, Radiowecker, Satellitenfernsehen, Geschirrspülbecken, Wasserkocher, Geschirrspülmaschine, Geschirr vorhanden, Nichtraucher Zimmer/App./Whg.
Zimmer Verteilung
Appartment
Betten Verteilung
Einzelbett, Doppelschlafcouch, Sofa, Doppelbett (1 Bett/2 Matratzen), Ausziehbare Couch, max. Pers.: 3
Lage/Blick Zimmer/Appartement
Etage / Stockwerk: 1, Haupthaus
-
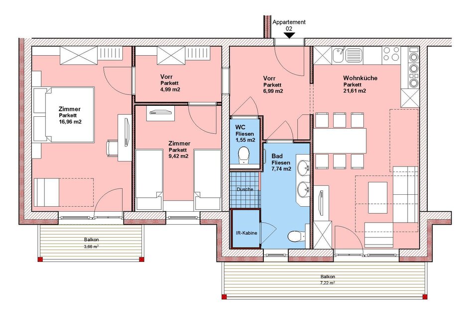
ab € 210,00 €
Größe 80 m² Belegung 4 - 8 Erwachsene , 0 - 4 Kinder Zimmer 3 Schlafzimmer 2 Zimmerdetails
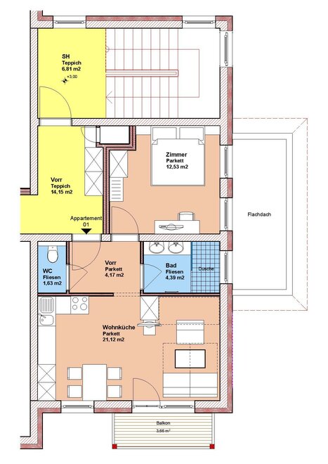
Appartement Planai bietet mit einer Größe von 80m² Platz für 4-8 Personen und bietet Ihnen mit seiner Ausstattung jeden erdenklichen Komfort.
Ausstattung:
» App. für 4-8 Personen mit ca. 80m² inkl. Balkon
» Die App. sind mit Zirbenmöbel und Eichenparkett eingerichtet
» 1 Doppelschlafzimmer
» 1 Schlafzimmer mit 2 Einzelbetten (kann man zusammenschieben)
» Wohnecke mit SAT TV und ausziehbarer Comfort Couch
» 2 ausziebaren Comfortsessel
» Wohnküche mit komplett eingerichteter Küche und Essbereich
» Bad mit Dusche, WC und Infrarotkabine
» 1 WC extra
» 2 Balkone
» Gratis W-LANSanitäre Ausstattung
Dusche, Badezimmer Anzahl: 1, Separates WC, Bad, WC, Toiletten Anzahl: 2, Fließendes Kalt- und Warmwasser, Waschtisch, Bad, Doppelwaschbecken
Ausstattung Zimmer/Appartement
Fernseher, Backofen, Wohnzimmer, Sitzgruppe, Haustiere nicht erlaubt, Safe, Handtücher vorhanden, WiFi, Sauna, Küchengeräte, Toaster, Küche, Kaffee-Maschine, Esszimmer, Kochmöglichkeiten, Haarföhn, Satellitenfernsehen, Dunstabzug, Radiowecker, Gefrierfach, Familienzimmer / app., Balkon, Geschirr vorhanden, Bettwäsche vorhanden, Wasserkocher, Geschirrspülbecken, Kombi-Mikrowelle, Vorraum, Garten, Kühlschrank, Schrank, Wiese, Toilettenartikel, Balkonmöbel, Geschirrspülmaschine, Größe m²: 80, Nichtraucher Zimmer/App./Whg.
Betten Verteilung
Einzelbett, Doppelschlafcouch, Doppelbett (1 Bett/2 Matratzen), Getrennte Betten, Sofa, Ausziehbare Couch, max. Pers.: 4
Lage/Blick Zimmer/Appartement
Etage / Stockwerk: 1, Haupthaus
Zimmer Verteilung
Appartment
-
ab € 315,00 €
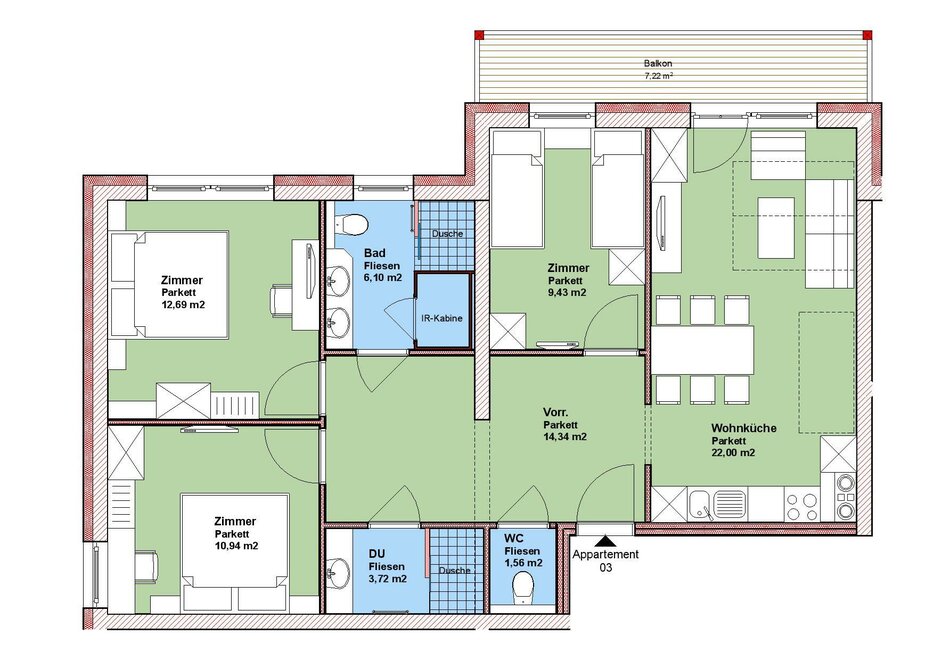
Größe 88 m² Belegung 4 - 9 Erwachsene , 0 - 5 Kinder Zimmer 4 Schlafzimmer 3 Zimmerdetails
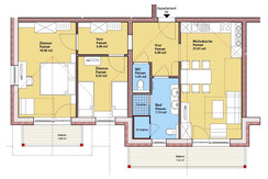
Appartement Dachstein bietet mit einer Größe von 88m² Platz für 6-9 Personen und bietet Ihnen mit seiner Ausstattung jeden erdenklichen Komfort.
Ausstattung:
» App. für 6-9 Personen mit ca. 88m² inkl. Balkon
» App. sind mit Zirbenholz und Eichenparkett eingerichtet
» 2 Doppelschlafzimmer
» 1 Schlafzimmer mit 2 Einzelbetten (die man auch zusammenschieben kann)
» Wohnecke mit SAT TV und ausziehbarer Comfort Couch
» 1 ausziebaren Comfortsessel
» Wohnküche mit komplett eingerichteter Küche und Essbereich
» 1 Badezimmer mit Dusche, WC und Infrarotkabine
» 1 Badezimmer mit Dusche
» 1 WC extra
» Balkon
» Gratis W-LANSanitäre Ausstattung
Bad, WC, Waschtisch, Fließendes Kalt- und Warmwasser, Doppelwaschbecken, Dusche, Separates WC, Badezimmer Anzahl: 2, Toiletten Anzahl: 2, Bad
Ausstattung Zimmer/Appartement
Kochmöglichkeiten, Toaster, Radiowecker, WiFi, Toilettenartikel, Safe, Kühlschrank, Fernseher, Esszimmer, Satellitenfernsehen, Geschirrspülbecken, Ohne Teppich, Sitzgruppe, Bettwäsche vorhanden, Backofen, Handtücher vorhanden, Küchengeräte, Geschirr vorhanden, Nichtraucher Zimmer/App./Whg., Gefrierfach, Geschirrspülmaschine, Sauna, Küche, Wasserkocher, Balkon, Dunstabzug, Größe m²: 88, Familienzimmer / app., Kaffee-Maschine, Haustiere nicht erlaubt, Vorraum, Kombi-Mikrowelle, Haarföhn, Balkonmöbel
Betten Verteilung
Getrennte Betten, Doppelschlafcouch, Einzelbett, Ausziehbare Couch, max. Pers.: 3, Doppelbett (1 Bett/2 Matratzen)
Lage/Blick Zimmer/Appartement
Haupthaus, Etage / Stockwerk: 1
Zimmer Verteilung
Appartment
-
ab € 105,00 €
Größe 48 m² Belegung 2 - 5 Erwachsene , 0 - 3 Kinder Zimmer 2 Schlafzimmer 1 Zimmerdetails
Appartement Kaibling bietet mit einer Größe von 48m² Platz für 2-5 Personen und bietet Ihnen mit seiner Ausstattung jeden erdenklichen Komfort.
Ausstattung:
» App. für 2-5 Personen mit ca. 48m² inkl. Balkon
» App. sind mit Zirbenholz und Eichenparkett eingerichtet
» Wohnküche mit komplett eingerichteter Küche und Essbereich
» Wohnecke mit SAT TV und ausziehbarer Comfort Couch
» 1 Doppelschlafzimmer
» 1 ausziebaren Comfortsessel
» Badezimmer mit Dusche
» WC extra
» Balkon
» Gratis W-LANAusstattung Zimmer/Appartement
Balkon, Haustiere nicht erlaubt, Größe m²: 48, Familienzimmer / app., Küchengeräte, Balkonmöbel, Gefrierfach, Kochmöglichkeiten, Toaster, Kombi-Mikrowelle, Dunstabzug, Handtücher vorhanden, Safe, Sitzgruppe, Geschirrspülmaschine, Vorraum, Fernseher, Küche, Bettwäsche vorhanden, Geschirrspülbecken, Kühlschrank, Backofen, WiFi, Haarföhn, Wasserkocher, Geschirr vorhanden, Kaffee-Maschine, Ohne Teppich, Radiowecker, Satellitenfernsehen
Betten Verteilung
Ausziehbare Couch, max. Pers.: 3, Sofa, Doppelbett (1 Bett/2 Matratzen)
Sanitäre Ausstattung
Bad, Separates WC, Fließendes Kalt- und Warmwasser, Badezimmer Anzahl: 1, Waschtisch, Toiletten Anzahl: 1, Doppelwaschbecken, Dusche
Zimmer Verteilung
Appartment
Lage/Blick Zimmer/Appartement
Haupthaus, Etage / Stockwerk: 2
-
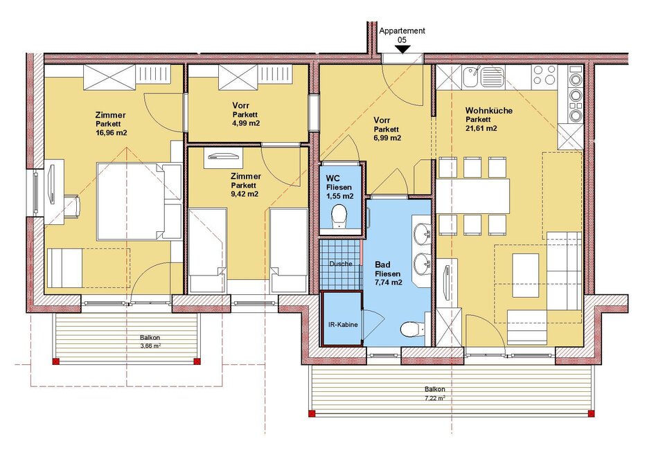
ab € 210,00 €
Größe 80 m² Belegung 4 - 8 Erwachsene , 0 - 4 Kinder Zimmer 3 Schlafzimmer 2 Zimmerdetails
Appartement Reiteralm bietet mit einer Größe von 80m² Platz für 4-8 Personen und bietet Ihnen mit seiner Ausstattung jeden erdenklichen Komfort.
Ausstattung:
» App. für 4-8 Personen mit ca. 80m² inkl. Balkon
» App. sind mit Zirbenholz und Eichenparkett eingerichtet
» 1 Doppelschlafzimmer
» 1 Schlafzimmer mit 2 Einzelbetten (die man zusammenschieben kann)
» Wohnecke mit SAT TV und ausziehbarer Comfort Couch
» 2 ausziebaren Comfortsessel
» Wohnküche mit komplett eingerichteter Küche und Essbereich
» Bad mit Dusche, WC und Infrarotkabine
» 1 WC extra
» 2 Balkone
» Gratis W-LANBetten Verteilung
Ausziehbare Couch, max. Pers.: 4, Doppelbett (1 Bett/2 Matratzen), Sofa
Ausstattung Zimmer/Appartement
Sauna, Bettwäsche vorhanden, Safe, Balkonmöbel, Nichtraucher Zimmer/App./Whg., Geschirrspülbecken, Fernseher, Sitzgruppe, Haustiere nicht erlaubt, Wasserkocher, Vorraum, Küche, Kaffee-Maschine, Geschirrspülmaschine, Kombi-Mikrowelle, Ohne Teppich, Handtücher vorhanden, Größe m²: 80, Küchengeräte, Haarföhn, Wohnzimmer, Gefrierfach, Backofen, Balkon, Radiowecker, Satellitenfernsehen, Dunstabzug, Toaster, Kühlschrank, WiFi, Geschirr vorhanden, Familienzimmer / app.
Lage/Blick Zimmer/Appartement
Haupthaus, Etage / Stockwerk: 2
Sanitäre Ausstattung
Toiletten Anzahl: 2, Badezimmer Anzahl: 1, Separates WC, Fließendes Kalt- und Warmwasser, Waschtisch, Doppelwaschbecken, Bad, WC, Bad
Zimmer Verteilung
Appartment
-
ab € 315,00 €
Größe 88 m² Belegung 4 - 9 Erwachsene , 0 - 5 Kinder Zimmer 4 Schlafzimmer 3 Zimmerdetails
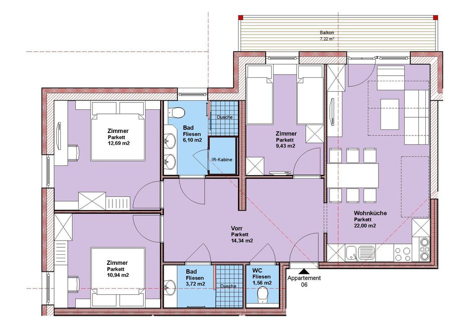
Appartement Golfblick bietet mit einer Größe von 88m² Platz für 6-9 Personen und bietet Ihnen mit seiner Ausstattung jeden erdenklichen Komfort.
Ausstattung:
» App. für 6-9 Personen mit ca. 88m² inkl. Balkon
» App. sind mit Zirbenholz und Eichenparkett eingerichtet
» 2 Doppelschlafzimmer
» 1 Schlafzimmer mit 2 Einzelbetten (die man auch zusammenschieben kann)
» Wohnecke mit SAT TV und ausziehbarer Comfort Couch
» 1 ausziebaren Comfortsessel
» Wohnküche mit komplett eingerichteter Küche und Essbereich
» 1 Badezimmer mit Dusche, WC und Infrarotkabine
» 1 Badezimmer mit Dusche
» 1 WC extra
» Balkon
» Gratis W-LANZimmer Verteilung
Appartment
Ausstattung Zimmer/Appartement
Balkon, Nichtraucher Zimmer/App./Whg., Kombi-Mikrowelle, Größe m²: 88, Wasserkocher, Haarföhn, Vorraum, Dunstabzug, Haustiere nicht erlaubt, Geschirrspülbecken, Backofen, Wohnzimmer, Handtücher vorhanden, Toaster, Safe, Geschirrspülmaschine, Balkonmöbel, Küche, Familienzimmer / app., Geschirr vorhanden, Sauna, WiFi, Gefrierfach, Fernseher, Küchengeräte, Bettwäsche vorhanden, Radiowecker, Sitzgruppe, Satellitenfernsehen, Kaffee-Maschine, Ohne Teppich, Kühlschrank
Sanitäre Ausstattung
WC, Doppelwaschbecken, Toiletten Anzahl: 2, Separates WC, Badezimmer Anzahl: 2, Fließendes Kalt- und Warmwasser, Waschtisch, Bad
Lage/Blick Zimmer/Appartement
Etage / Stockwerk: 2, Haupthaus
Betten Verteilung
Ausziehbare Couch, max. Pers.: 3, Sofa, Doppelbett (1 Bett/2 Matratzen), Doppelschlafcouch
-
Persönliche Beratung
-
Sicher durch SSL
-
Unabhängige Bewertungen
-
100%ige Preistransparenz